Marzo 22, 2024
En el transcurso del año 2024, Sistemas llevó adelante la provisión de tres shelters bajo especificación para la empresa Tecnet – Techint, destinados a salas de RTU (Remote Terminal Unit) en instalaciones estratégicas de la provincia de Córdoba.

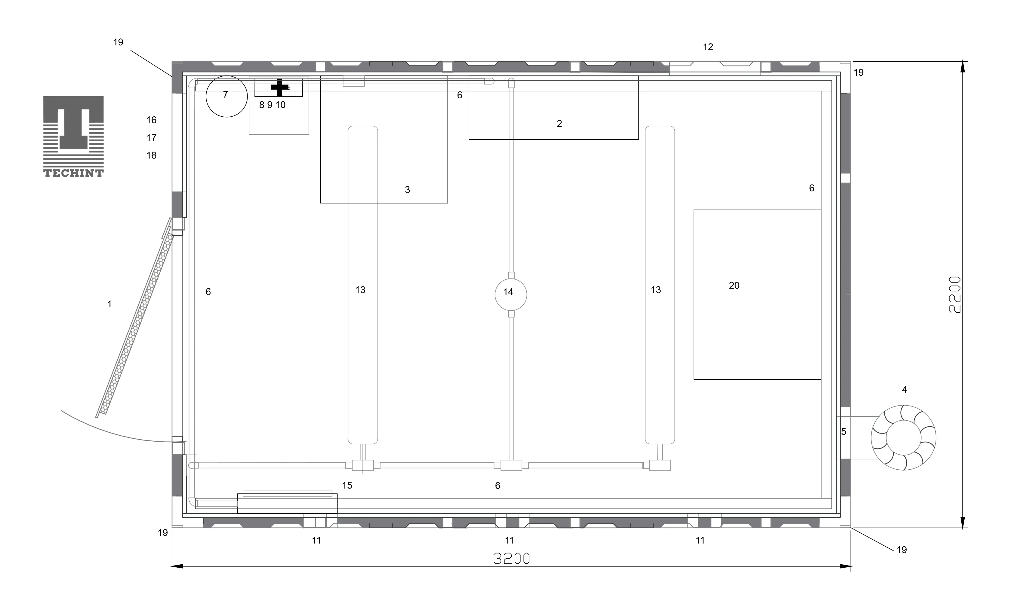
Los shelters, con medidas de 3,2 m x 2,2 m x 3 m, fueron diseñados y construidos según estrictos estándares técnicos y de seguridad, garantizando condiciones óptimas para el alojamiento de equipamiento electrónico de control y comunicación.

Cada shelter incluyó los siguientes elementos principales:
• Puerta de seguridad BWG-12, equipada con cerrojo Trabex, manijón exterior, barral antipánico interior, bisagras tipo furgón soldadas y sensor de apertura, asegurando accesos confiables y controlados.
• Gabinete RTU VB 401 y gabinete de comunicación, fundamentales para el alojamiento del sistema de control remoto y redes.
• Turbillones, que favorecen la ventilación cruzada del recinto.
• Bandejas pasacables para una distribución ordenada del cableado interno.
• Elementos de seguridad como matafuego ABC y botiquín de emergencia, conforme a normativas vigentes.
• Accesorios ergonómicos como mesa rebatible y porta planos, pensados para facilitar el trabajo de técnicos en sitio.
• Perforaciones para caño de 2” y pase para cable de Instrumentación y Control (I&C), preparados para conexiones de campo.
• Sistema de iluminación LED a 24 Vcc, con sensor de humo y sensor de temperatura, elementos críticos para la detección temprana de incidentes.
• Tablero eléctrico de corriente continua (TCC 24 Vcc), eje del suministro energético de respaldo.
• Elementos estructurales como aberturas con celosía externa y filtro metálico, garantizando ventilación pasiva sin comprometer la protección del interior.
• Cáncamos de izaje superiores e inferiores y esquineros metálicos, que facilitaron la logística de transporte y montaje.
• Espacio reservado para el equipamiento del cliente, permitiendo la integración de sistemas adicionales en cada ubicación.

Esta provisión forma parte del compromiso de Sistemas con proyectos de automatización e infraestructura crítica, donde la precisión técnica y la robustez estructural son pilares fundamentales. La colaboración con Tecnet – Techint consolida una vez más el rol de Sistemas Energéticos como socio estratégico en soluciones llave en mano para el sector energético e industrial.
Te ayudamos a optimizar tu consumo energético!
No dudes en comunicarte con nosotros, nuestro equipo está listo para asesorarte y brindarte la mejor opción para tu proyecto.
(+54) 11 3517 3689
ventas@sistemasenergeticos.com.ar
O escribinos a través de la sección Contacto